エル・グランピア
new
更新日:2025-12-21
物件画像
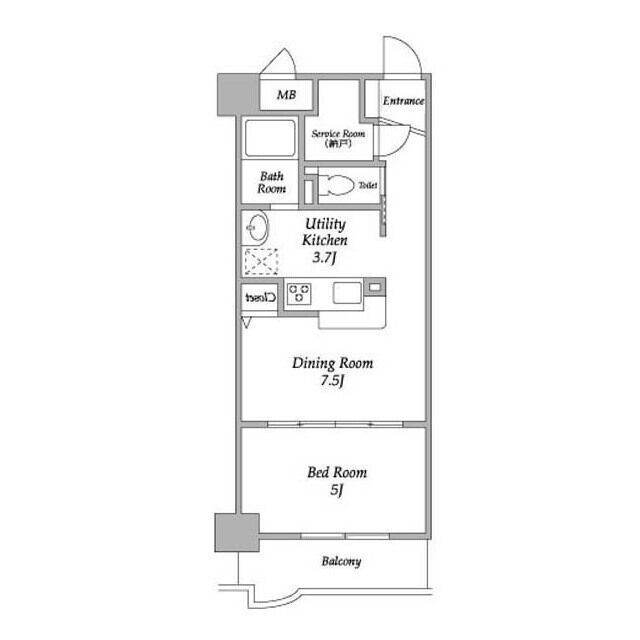
部屋間取り一覧
物件詳細
| 物件名 | エル・グランピア |
|---|---|
| 所在地 | 東京都豊島区南長崎5丁目-13-12 |
| 交通 | |
| 物件概要 |
西武池袋線『東長崎駅』徒歩3分 「エル・グランピア」の一人暮らし向けの賃貸マンション情報です。
(2025-12-21 更新) この建物は地上7階建ての物件になります。 当サイト「ひとり暮らし賃貸」は一人暮らし・単身者向けの賃貸物件の情報を集めた専門サイトです。 「エル・グランピア」は現在 2室の空室があり 1SLDK、40.03㎡、12.4万円~12.5万円 のお部屋がご契約可能です。 空室情報は毎日更新しておりますが、最新の状況はお問い合わせください。 ひとり暮らし物件を探すなら新着情報がどこよりも早い「プロパティバンク」まで! |
| 建物特徴 | |||
|---|---|---|---|
| 建物設備 | オートロック、エレベータ、宅配ボックス、駐輪場、防犯カメラ | ||
| 物件の詳細情報 | 「エル・グランピア」の詳細情報 | ||
| 最新の賃貸情報 | |||
エル・グランピア へのお問い合せはプロパティバンクまで
部屋情報
| 部屋 | 間取 | 面積 | 家賃 | 管理費 | 敷金 | 礼金 | 詳細 |
|---|---|---|---|---|---|---|---|
| 0205 | 1SLDK | 40.03㎡ | 124,000円 | 6,000円 | 1ヶ月 | 1ヶ月 | 詳細はこちら |
| 0302 | 1SLDK | 40.03㎡ | 125,000円 | 6,000円 | 1ヶ月 | 1ヶ月 | 詳細はこちら |
※分譲賃貸マンションは、貸主様や代理不動産業者のご希望で、それぞれのお部屋の賃料や管理費、敷金、礼金などの契約条件が変わる場合がございます。
また、各部屋のオーナー様次第で、設備・仕様・内装などが変更されている場合もございます。
※駐輪場・バイク置場・駐車場の正確な空き状況についてはお問合せをお願い致します。
※礼金ゼロ、フリーレント、ペット飼育可、家具付きなどのお部屋の詳細は、メールやお電話にて事前にスタッフまでご確認ください。
※ペット飼育及び事務所・SOHO可については物件の管理規約で可能になっている場合でも、各部屋の所有者様次第で禁止となっている場合がございます。
※駐輪場・バイク置場・駐車場の正確な空き状況についてはお問合せをお願い致します。
※礼金ゼロ、フリーレント、ペット飼育可、家具付きなどのお部屋の詳細は、メールやお電話にて事前にスタッフまでご確認ください。
※ペット飼育及び事務所・SOHO可については物件の管理規約で可能になっている場合でも、各部屋の所有者様次第で禁止となっている場合がございます。
物件マップ
※物件掲載内容と現況に相違がある場合は現況を優先と致します。
このページについて
このページは「エル・グランピア」の詳細情報です。
