コンフォリア麻布台
new
更新日:2025-12-29
物件画像
部屋間取り一覧
物件詳細
| 物件名 | コンフォリア麻布台 |
|---|---|
| 所在地 | 東京都港区麻布台3-4-4 |
| 交通 | |
| 物件概要 |
東京メトロ南北線『六本木一丁目駅』徒歩6分 「コンフォリア麻布台」の一人暮らし向けの賃貸マンション情報です。
(2025-12-29 更新) この建物は地上4階(地下1階)建ての物件になります。 当サイト「ひとり暮らし賃貸」は一人暮らし・単身者向けの賃貸物件の情報を集めた専門サイトです。 「コンフォリア麻布台」は現在 1室の空室があり 1DK、34.43㎡、18.5万円 のお部屋がご契約可能です。 空室情報は毎日更新しておりますが、最新の状況はお問い合わせください。 ひとり暮らし物件を探すなら新着情報がどこよりも早い「プロパティバンク」まで! |
| 建物特徴 | |||
|---|---|---|---|
| 建物設備 | オートロック、エレベータ、宅配ボックス、駐輪場、防犯カメラ | ||
| 物件の詳細情報 | 「コンフォリア麻布台」の詳細情報 | ||
| 最新の賃貸情報 | |||
コンフォリア麻布台 へのお問い合せはプロパティバンクまで
部屋情報
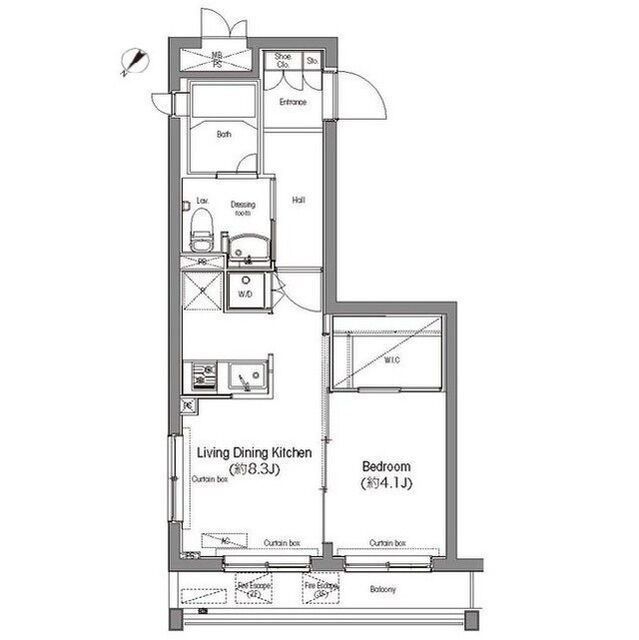
| 部屋 | 間取 | 面積 | 家賃 | 管理費 | 敷金 | 礼金 | 詳細 |
|---|---|---|---|---|---|---|---|
| 0305 | 1DK | 34.43㎡ | 185,000円 | 7,000円 | 1ヶ月 | 0ヶ月 | 詳細はこちら |
※分譲賃貸マンションは、貸主様や代理不動産業者のご希望で、それぞれのお部屋の賃料や管理費、敷金、礼金などの契約条件が変わる場合がございます。
また、各部屋のオーナー様次第で、設備・仕様・内装などが変更されている場合もございます。
※駐輪場・バイク置場・駐車場の正確な空き状況についてはお問合せをお願い致します。
※礼金ゼロ、フリーレント、ペット飼育可、家具付きなどのお部屋の詳細は、メールやお電話にて事前にスタッフまでご確認ください。
※ペット飼育及び事務所・SOHO可については物件の管理規約で可能になっている場合でも、各部屋の所有者様次第で禁止となっている場合がございます。
※駐輪場・バイク置場・駐車場の正確な空き状況についてはお問合せをお願い致します。
※礼金ゼロ、フリーレント、ペット飼育可、家具付きなどのお部屋の詳細は、メールやお電話にて事前にスタッフまでご確認ください。
※ペット飼育及び事務所・SOHO可については物件の管理規約で可能になっている場合でも、各部屋の所有者様次第で禁止となっている場合がございます。
物件マップ
※物件掲載内容と現況に相違がある場合は現況を優先と致します。
このページについて
このページは「コンフォリア麻布台」の詳細情報です。
